Про це повідомляє на своїй сторінці у фейсбуці журналістка, дослідниця історії Ужгорода Тетяна Літераті.
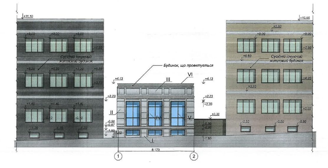
«Перед старою віллою на вул. О. Духновича почалися будівельні роботи! Вчора повідомили, що в самому серці Ужгорода, перед фасадом вілли міжвоєнних часів на вул. О. Духновича, 13, почалися будівельні роботи: екскаватор копав яму попри те, що власники двох квартир виступили проти забудови під їхніми вікнами і написали про це звернення до міського управління архітектури.
Власник малесенької ділянки між дорогою і віллою хоче звести там житловий будинок із приміщеннями комерційного призначення. Проєкт оформлений як реконструкція «господарських приміщень цокольного типу». Але проблема в тому, що там нема ніяких приміщень цокольного типу, тобто будівництво починається з нуля.
Вулиця О. Духнович до цього ще дивом трималася від сучасних добудов. Наразі там є лише одна радянська будівля (музичний коледж) – все інше є історичним. Якщо власники не зможуть нічого вдіяти, будемо мати там отаке (показую на фото)».

