Міська влада анонсувала план оновлення Ботанічної набережної як «зеленої історичної вітрини Ужгорода» з пішохідною зоною, дамбою та житловою забудовою. В чому ризики для міста.
Ботанічна набережна розташована у центральній частині Ужгорода, уздовж правого берега річки Уж — від площі Євгена Фенцика до транспортного мосту, в підніжжі Замкової гори. Територія набережної також включає Ужгородську дитячу залізницю та Ботанічний сад УжНУ.
Міська влада анонсувала облаштування оновленої набережної з пішохідною зоною та дамбою, яка, за задумом проєктантів, має убезпечити прибережну територію від можливих паводків.
Містяни ж припускають, що там буде ще одна багатоповерхівка, історичний ареал буде зруйновано, а доступ до набережної закриють.
Розбираємося, що не так з проєктом модернізації Ботанічної набережної та що потенційно загрожує цій території.
Детальний план території для Ботанічної набережної від міськради: що планують зробити?
Управління містобудування оприлюднило ДПТ для території Ботанічної набережної.
«Дана територія є поліфункціональною, хоча більшість з неї пустує в нічний час доби, тому покращення рекреаційних об’єктів на території покращить якість середовища в майбутньому», — так міськрада обґрунтувала рішення облаштувати набережну.
Згідно з документом, будівництво має «інтегруватися в історичний центр та створити пішохідний простір, який з’єднає Замкову гору, університетські корпуси й природно-рекреаційні території вздовж річки».
У документі зазначили, що довгострокова модель розвитку території базується на принципах «збереження спадщини, екологічної рівноваги та публічної відкритості». Вона спрямована на створення так званої «зеленої історичної вітрини Ужгорода» — єдиного пішохідно-рекреаційного простору, який поєднує історичну Замкову гору, Ботанічний сад, дитячу залізницю та річку Уж.
«Територія потребує не стільки щільної забудови, скільки системного благоустрою, екологічного осмислення та інтеграції в єдиний культурно-природний каркас центральної частини Ужгорода», — йдеться у документі.
У ДПТ стверджують, що проєктні рішення спрямовані на «збереження та гармонійний розвиток історично сформованого середовища Замкової гори та прилеглої території Ботанічної набережної».
Цим документом передбачається й реставрація історичних будівель, відновлення фасадів, покрівлі та вуличних елементів, що мають історико-архітектурну цінність. У міській раді обіцяють виконати роботи з використанням натурального каменю, дерева, керамічної черепиці, тинькованих поверхонь та зберегти колірну гаму, характерну для старого Ужгорода.
У міськраді також планують створити підземні укриття на цій території. Вони передбачені «у вигляді заглиблених приміщень і сховищ, розташованих поблизу університетських корпусів та центральних прогулянкових ділянок». За замислом, у мирний час такі приміщення можуть використовуватися як «підземні виставкові або технічні простори, склади для обслуговування набережної чи навіть культурно-освітні зали».
Також у планах — будівництво дамби, що захищатиме набережну від паводків.
«Проєктом не передбачається розміщення нового житлового фонду на території Ботанічної набережної та прилеглої частини Замкової гори. Основний напрям розвитку території визначено як громадсько-рекреаційний, із пріоритетом благоустрою, ландшафтного впорядкування, охорони пам’яток та збереження автентичного історичного середовища», — обіцяють у проєкті.
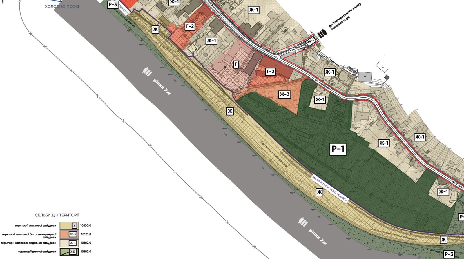
Тобто, у текстовій частині ДПТ не йдеться про нову житлову забудову на цій території, а тільки про «системний благоустрій». Натомість на карті функціонального зонування території, яка є частиною ДПТ? таки передбачена житлова забудова з відповідною позначкою «Ж». Водночас біля ботсаду ще восени 2025 року почалося будівництво, яке позначене на карті позначкою «Ж-3» (житлова багатоквартирна забудова). (На фото внизу)
Чому громадськість обурюється
11 грудня відбулися громадські слухання по цьому детальному плану території.
Ужгородці мають сумніви щодо реального дотримання принципів збереження історичного центру та побоюються, що під прикриттям благоустрою можуть реалізовуватися інші, менш прозорі інтереси.
— Ініціатива створення 7-ми метрової дамби не має жодної користі для міста. Вона є інтересом забудовників, передує житловій забудові на набережній. Втручання в територію Замкової гори, у такий варварський спосіб, також є неприпустимим. Таке рішення не має наукового обґрунтування, а тільки переслідує інтереси потенційних забудовників, — сказав ужгородець та колишній військовий Павло Логвінов на громадських слуханнях щодо затвердження плану, 11 грудня 2025 року.
Детальний план території наразі обмежується вулицями Августина Волошина, Івана Ольбрахта, Академіка Шпеника, Ботанічною набережною та площею Євгена Фенцика. Будівництво та реставрація історичних будівель та вулиць може загрожувати містянам втратою історичної спадщини міста.
«Я не для того захищав цю землю, щоб „бариги“ її ділили і продавали», — додає Павло Логвінов.
Хоч цей план облаштування набережної ще не затвердили, будівництво там уже почалось. На території Ботанічного провулку, що сполучає набережну та вулицю І. Ольбрахта, вже стоїть будівельний кран, а земля навколо нього — розрита, зі слідами роботи важкої техніки на ній.
Містяни скаржаться, що користуватись провулком «Ботанічний» наразі неможливо, через будівельну техніку він перекритий. Прямого доступу до річки жителі прилеглих вулиць теж не мають.
Будівництво не відповідає планам: коментар юристки
У коментарі для Varosh адвокатка Наталія Майстренко зауважила: багато пунктів цього ДПТ залишаються незрозумілими. Вона наголосила, що відповідно до постанови Кабінету Міністрів України № 926 «Про затвердження Порядку розроблення, оновлення, внесення змін та затвердження містобудівної документації» від 1 вересня 2021 року розробники мали чітко визначити функціональне призначення цієї території і не змінювати його в майбутньому.
Наталія Майстренко також вважає, що план побудови дамби є абсурдним: «Ботанічна набережна є більш розлогою та стоїть нижче, ніж паралельна їй Православна набережна. Отже, якщо на правому березі річки Уж побудувати дамбу висотою 5-7 метрів, у разі паводків або льодоходу Православну набережну вкриє річка, адже розлога Ботанічна набережна більше не виконуватиме своєї функції належним чином».
Пані Наталія також додає, що й про збереження дитячої залізниці не йдеться. Як зазначив на сесії міської ради від 23 грудня Павло Логвінов, «ми рухаємося до того, щоб створити перше ужгородське метро». Адже якщо дамбу таки побудують, то вона повністю накриє колію.
Те саме стосується і будівництва потенційного укриття. Адже рішення будувати підземне укриття на набережній, тобто поруч з великими масивами води, не видається логічним. Робота важкої будівельної техніки, прокладання мереж, бетонування на цій території — назавжди змінять цю територію, її функціональне призначення та привабливість. Тобто йдеться про незворотню зміну історичного центру Ужгорода.
Майстренко додає, що варто було б створити ДПТ для всього комплексу Замковї гори, а не розглядати дрібніші детальні плани території. Тоді вдалося б системніше підійти до питання захисту історичної спадщини міста.
Як запобігти забудові набережної та історичного центру?
— Для того, щоб громадськість відстояла свої інтереси, необхідно залучити більше свідомих громадян. Найперше — про це потрібно говорити, щоб потім містянам не довелось миритись із черговою багатоповерхівкою на набережній в історичному центрі міста, — каже Наталія Майстренко.
Підстави для розроблення ДПТ Ботанічної набережної депутати ухвалили на сесії Ужгородської міської ради 24 жовтня 2024 року. Громадські обговорення проєкту розпочалися 19 листопада 2025 року, впродовж місяця від початку обговорення містяни мали змогу подати свої зауваження та пропозиції до проєкту. Перші громадські слухання пройшли вже 11 грудня. Далі на ужгородців чекає скликання погоджувальної комісії та продовження громадських обговорень.
Погоджувальна комісія — це спеціалізований дорадчий орган, який створюється для розгляду пропозицій до змін у проєкті, узгодження позицій між сторонами, а також для підготовки проєктів рішень перед їх винесенням на сесію. Членами погоджувальної комісії є, зокрема, і містяни, які обираються шляхом голосування з-поміж присутніх на громадських слуханнях.
Varosh надіслав запит до Ужгородської міської ради, щоб дізнатися, коли буде створена погоджувальна комісія, скільки пропозицій щодо цього ДПТ надійшло від ужгородців та коли їх планують розглянути.
