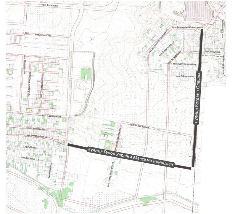
На честь військового Максима Кривцова, який воював на Херсонщині, найменують вулицю у Рівному. Відповідне рішення підтримали на сесії міської ради.
Про це пише Суспільне Рівне.

Зазначається, що Максим Кривцов брав участь у Революції Гідності, у 2014 році пішов добровольцем у 5 батальйон “Правого сектора”. Потім він служив старшим кулеметником у бригаді швидкого реагування Нацгвардії. Згодом Кривцова демобілізували й чоловік допомагав іншим ветеранам. Після повномасштабного вторгнення він знову вступив до лав ЗСУ. Воював на Київщині, Харківщині, Херсонщині, Луганщині й Донеччині. Мав позивний Далі.
Його збірку “Вірші з бійниці”, яку видали у 2023 році, визнали однією з найкращих українських книжок 2023 року за версією ПЕН — української громадської організації, створеної з метою розвитку літератури.
Військовий загинув 7 січня 2024 року внаслідок артилерійського обстрілу на Харківщині. У 2025 році президент Володимир Зеленський надав Максиму Кривцову звання Героя України.
